Ficha
Calle José Canalejas
Zaragoza (Centro) - REF. 1453

170 m2

4

2

2
venta: 638.000 €
antes: 655.000 €
Descripción

VIVIENDA EN PLAZA DE LOS SITIOS, ÚNICA POR SU UBICACIÓN EN EDIFICIO REPRESENTATIVO.

En calle José Canalejas, Plaza de Los Sitios, junto Paseo Constitución y otras de las arterias principales de la ciudad; Paseo Independencia y Paseo de la Constitución.


Área de alto interés residencial por la tipología de sus edificaciones, ubicación en el núcleo urbano y disponibilidad de servicios de todo tipo, comercio y ocio.

En edificio de los años 20, rehabilitado en los 2000, representativo de la tipología de edificación de la época, de estilo clasicista. De alta calidad constructiva y bien conservado en sus instalaciones y zonas comunes. Con portal renovado y salvaescaleras.
Vivienda excepcional por su ubicación dentro de la zona, delante del Museo de Zaragoza, con vista despejada a la calle, con arbolado, y Plaza de Los Sitios. Luminosidad de todos sus espacios y tranquilidad, alejado de los núcleos de ocio.

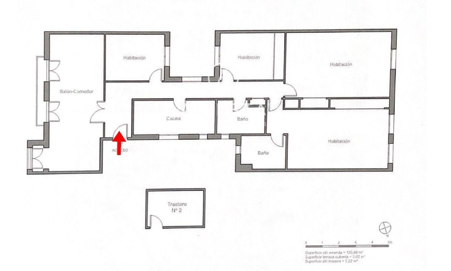
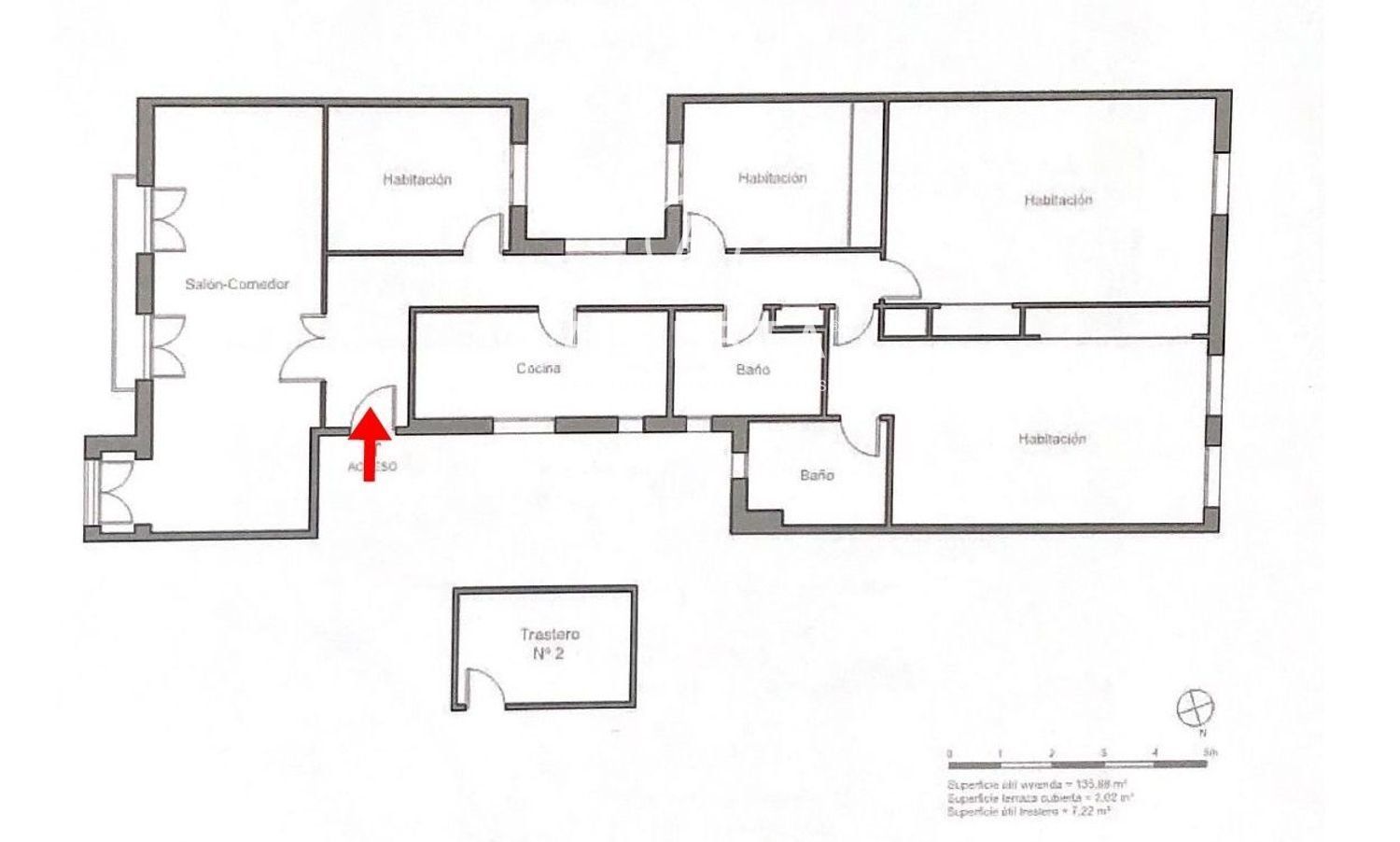
Superficie de unos 140 m2 útiles, distribuidos para obtener el máximo aprovechamiento y gran funcionalidad de los espacios (ver croquis). Salón de unos 28 m2 con balcones a la calle, cocina con gran capacidad de almacenaje, cuatro dormitorios, dos de ellos de 25 m2 y dos baños parcialmente renovados, uno de ellos en suite. Posibilidad de abrir la cocina al salón en concepto abierto.
Carpintería interior lacada y exterior climalit.

Calefacción central con control individual de gas y aire acondicionado por conductos en toda la vivienda.


El precio incluye un cuarto trastero en la misma finca.

Para más información y visitas, ALIERTA.


Características
Precio Venta 638.000 €
Año de construcción 2000
Construidos 170 m2
Útiles 150 m2
Precio/m² 3.753
Dormitorios 4
Baños 2
Cocina Amueblada
Calefacción Gas Natural
Trastero
Altura/Planta 2
Estado Buen estado
Tipo de suelo Parquet
Ascensor
Aire acondicionado
Calificación Energética (E) VER
Luz
Agua
Escalas de eficiencia


Eficiencia Emisiones: 37,00
-
37

Tu agente
María Rufas (Venta)
Contáctanos

Si deseas más información sobre esta propiedad, por favor, rellena el formulario.

 Sí, he leído y/o acepto las Condiciones de uso y la Política de privacidad
Inmuebles similares:
 
590.000 €
Ref. 1473  220 m2  4  3
Piso en venta en Zaragoza, con 220 m2, 4 habitaciones y 3 baños, Garaje, Trastero, Ascensor, Aire acondicionado y Calefacción Gas Natural.
 
695.000 €
Ref. 1451  200 m2  4  3
Piso en venta en Zaragoza, con 200 m2, 4 habitaciones y 3 baños, Trastero, Ascensor, Aire acondicionado y Calefacción Gasoleo.