Ficha
Local Escoriaza y Fabro
Zaragoza (Delicias) - REF. 1265

285 m2

2

2
alquiler: 2.200 €/mes
Descripción
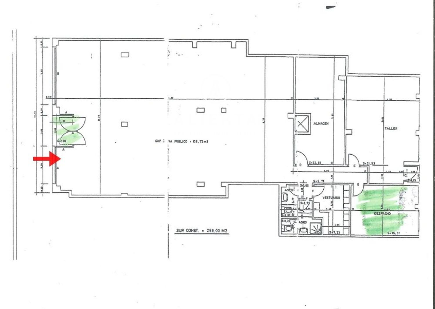
Amplio y muy luminoso local acondicionado junto a la Avenida Madrid y la Avenida Navarra, junto a la Plaza de la Ciudadanía.
Actualmente dividido en varias oficinas, almacén y zona de comercio con gran almacenamiento. POSIBILIDAD de convertirlo en local DIÁFANO.
Adaptado para potencia trifásica. Altura de techos. Alarma y puerta cortafuegos. Hilo musical. Totalmente adaptado con red, telefonía y televisión.
Salida a un gran patio muy luminoso y tranquilo de la Comunidad desde la zona destinada actualmente a taller.
Incluye dos plazas de garaje en la misma finca y con entrada desde el portal de la Comunidad de al lado.
Más Información Alierta Inmuebles.
Características
Precio Alquiler 2.200 €/mes
Año de construcción 1989
Construidos 285 m2
Útiles 265 m2
Baños 2
Calefacción Eléctrica
Estado Buen estado
Aire acondicionado
Salida de humos No
Garaje
Calificación Energética En trámite
Luz
Agua
Alarma interior
Escalas de eficiencia



Tu agente
Eva Pueyo
Contáctanos

Si deseas más información sobre esta propiedad, por favor, rellena el formulario.

 Sí, he leído y/o acepto las Condiciones de uso y la Política de privacidad